Close

Hyr Boendemoduler

Behöver du hyra boendemoduler eller manskapsbodar? Vi har ett brett sortiment av boendemoduler och vi garanterar att du kan hitta det du letar efter hos oss. Här finner du vårt sortiment av boendemoduler och manskapsbodar!

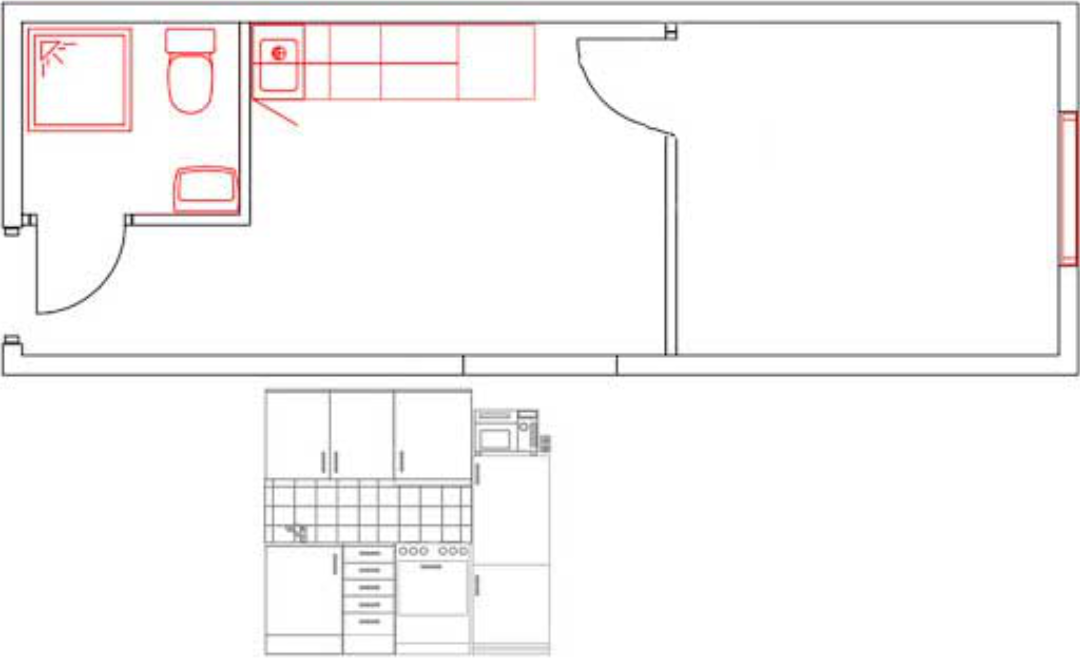
Boendemodul för en person

Yttermått (LxBxH)

8,65 x 2,95 x 3,0 m

En dag 480,14 kr / dag
Månad 14 404 kr / månad
Exkl. moms

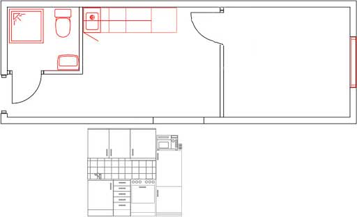
Boendemodul för två personer

Korridoröppning

120 cm

Yttermått (LxBxH)

8,65 x 2,95 x 3,0 m

En dag 371,10 kr / dag
Månad 11 133 kr / månad
Exkl. moms

Du kanske är intresserad av

Fler produkter